
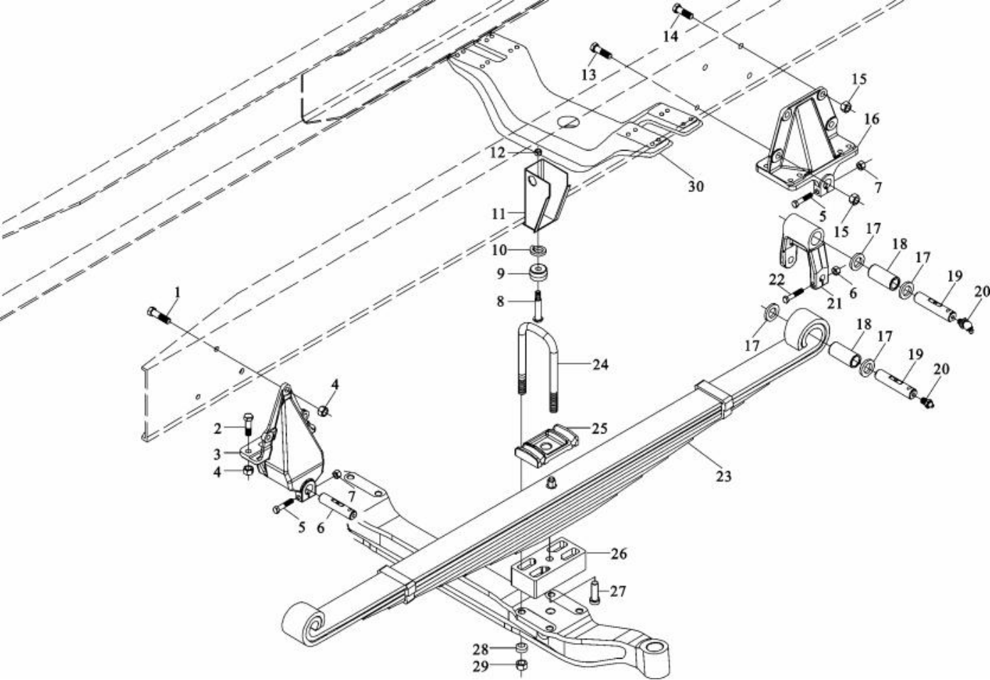
| 1 | 190003803757 | Bolt | 6 | |||||||||||
| 2 | 190003803746 | Bolt | 4 | |||||||||||
| 3 | DZ9114520010 | Front spring front bracket | 2 | |||||||||||
| 4 | 190003888458 | Nut | 10 | |||||||||||
| 5 | 190003803674 | Bolt | 4 | |||||||||||
| 6 | DZ9114520005 | spring pin | 1 | |||||||||||
| 7 | 190003888457 | Nut | 6 | |||||||||||
| 8 | 188000520019 | fastener | 2 | |||||||||||
| 9 | 81.96020.6013 | Front spring limit block | 2 | |||||||||||
| 10 | 190003931122 | spring washer | 2 | |||||||||||
| 11 | DZ9114680010 | Buffer block bracket | 2 | |||||||||||
| 12 | 190003871305 | Nut | 2 | |||||||||||
| 13 | 190003803846 | Bolt | 2 | |||||||||||
| 14 | 190003803844 | Bolt | 6 | |||||||||||
| 15 | 190003888459 | Nut | 8 | |||||||||||
| 16 | DZ9214520010 DZ9214520011 |
Left rear bracket of front spring Front spring, right rear bracket |
2 2 |
4×2 | ||||||||||
| 17 | 168000520050 | Gasket | 12 | 6×4 | ||||||||||
| 18 | 199000520078 | Lifting ear liner | 6 | 6×4 | ||||||||||
| 19 | 199100520005 199100520006 |
Spring pin shaft Spring pin shaft |
6 6 |
4×2 | ||||||||||