we are very professional in spare parts for 20 years, welcome to send inquiry list to get lowest price and good quality parts| 20 | 190003963127 | Oil nozzle (front, rear, left) | 6 | |||||||||||
| 190003963112 | Oil nozzle (front, rear, left) | 6 | ||||||||||||
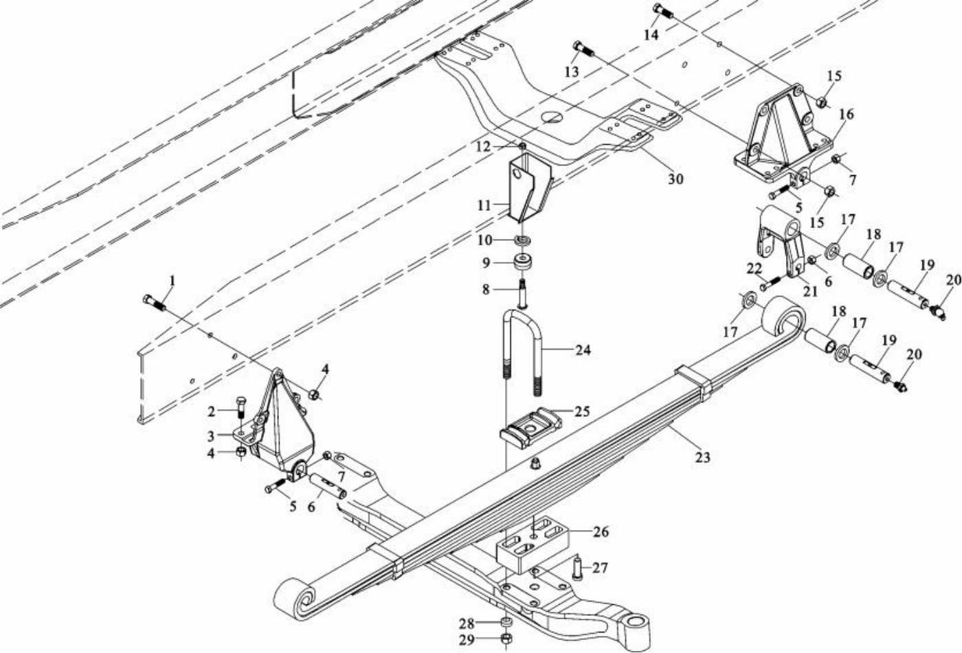
| 21 | 199100520034 | Front spring suspension ear assembly | 2 | |||||||||||
| 199100520018 | Front spring suspension ear | 2 | ||||||||||||
| 22 | 190003803666 | Bolt | 2 | |||||||||||
| 23 | AZ9100520002 | Front left steel plate spring assembly | 1 | |||||||||||
| AZ9100520042 | Front right spring plate spring assembly | 1 | ||||||||||||
| 24 | 188000520001 | Riding bolt | 4 | |||||||||||
| 25 | 188000520002 | Front spring pressure plate | 2 | |||||||||||
| 26 | 199014520304 | spring seat | 2 | |||||||||||
| 27 | 199000520006 | Guided sales | 2 | |||||||||||
| 28 | 1680 520056 | Gasket | 8 | |||||||||||
| 1680 520043 | Gasket | 8 | ||||||||||||
| 29 | 190003888626 | Nut | 8 | |||||||||||
| 30 | 199114510510 | Horizontal beam | 1 | |||||||||||